1 .. 120 121 122 123 124 125 126 127 128 129 130 .. 220
Sistemas VRV
®
• Unidades exteriores
123
Unidades exteriores • Serie estándar • RWEYQ-PY1
5
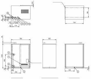
Plano de dimensiones y centro de gravedad
5 - 1
Plano de dimensiones
3
5
RWEYQ8-10P
3D062150
*método de conexión Tubo de líquido: conexión abocardada
Tubo de gas de aspiración
Tubo de gas HP/LP (alta presión-baja presión)
*En el caso de sistema de bomba de calor, el tubo de gas de
aspiración no utilizado
NOTA
1
El terminal a tierra está en la caja de interruptores
2
El tamaño de la tubería es el que sigue.
Nombre de modelo
RWEYQ8PY1
RWEYQ10PY1
Sistema de
funcionamiento
Bomba de
calor
Recuperació
n de calor
Bomba de
calor
Recuperació
n de calor
Tubería de líquido
Ø9,5
Ø9,5
Ø9,5
Ø9,5
Tubo de gas de
aspiración
Ø19,1
Ø22,2
Tubo de gas HP/LP
(alta presión-baja
presión)
Ø19,1
Ø15,9
Ø22,2
Ø19,1
Nombre
Descripción
1
Tubería de líquido
consulte la nota 2
2
Conexión del tubo de gas de
aspiración
consulte la nota 2
3
Tubo de gas HP/LP (alta
presión-baja presión)
consulte la nota 2
4
Entrada de agua
PT 1
1
/
4
B rosca interna
5
Salida de agua
PT1
1
/
4
B rosca interna
6
Salida de drenaje
PS
1
/
2
 B rosca interna
7
Terminal a tierra
M5
8
Orificio pasante del cable de
alimentación
Ø29
9
Orificio de paso del cableado
Ø29
(Separación de los orificios de los
pernos para cimientos)
(
S
eparación de l
o
s
 or
if
icios de los
per
nos
 para c
i
m
i
ent
os)
(
D
espués de f
ijar
 el
 
t
ubo de
ac
cesori
os
)
Etiqueta del
fabricante
Vista frontal
Vista lateral derecha
Vista trasera
(TAPÓN)
}
:
conexión
soldada
4 - Ø17 para orificio
(perno para cimientos)