1 .. 124 125 126 127 128 129 130 131 132 133 134 .. 220
Sistemas VRV
®
• Unidades exteriores
127
Unidades exteriores • Serie estándar • RWEYQ-PY1
7
Diagrama de cableado
7 - 2
Diagrama de conexión externa
3
7
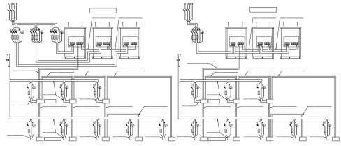
RWEYQ-P-[BOMBA DE CALOR]
3D048823D
Cuando la energía eléctrica llega a
cada unidad exterior por separado.
Cuando la fuente de alimentación está
conectada en serie entre las unidades
UNIDADES
EXTERIORES
UN
IDADES
EXTERIORES
alimentación eléctrica
alimentación eléctrica
interruptor
principal
interruptor
fusible
fusible
interruptor
fusible
interruptor
fusible
interruptor
fusible
interruptor
fusible
interruptor
fusible
interruptor
fusible
interruptor
fusible
Cable de 2 hilos
(Línea de transmisión)
Cable de 2 hilos
(Línea de transmisión)
UNIDAD 1
Cable de 2 hilos
(Línea de transmisión)
Cable de 2 hilos
(Línea de transmisión)
Cable de 2 hilos
(Línea de transmisión)
Cable de 2 hilos
(Línea de transmisión)
Cable de 2 hilos
(Línea de transmisión)
Cable de 2 hilos
(Línea de transmisión)
Cable de 2 hilos
(Línea de transmisión)
Cable de 2 hilos
(Línea de transmisión)
Cable de 2 hilos
(Línea de alimentación)
Cable de 2 hilos
(Línea de alimentación)
UNIDADESINTERIORES
UNIDADESINTERIORES
alimentación
eléctrica
alimentación
eléctrica
interruptor
principal
UNIDAD 2
UNIDAD 2
UNIDAD 1
interruptor
fusible
UNIDAD 3
Cable de 2 hilos
(Línea de transmisión)
UNIDAD 3
Cable de 2 hilos
(Línea de transmisión)
Cable de 2 hilos
(Línea de alimentación)
Cable de 2 hilos
(Línea de alimentación)
Cable de 2 hilos
(Línea de alimentación)
Cable de 2 hilos
(Línea de alimentación)
Cable de 2 hilos
(L
ínea de al
imentación)
Cable de 2 hilos
(Línea de alimentación)
Cable de 2 hilos
(Línea de alimentación)
Cable de 2 hilos
(Línea de alimentación)
Cable de 2 hilos
(Línea de alimentación)
Cable de 2 hilos
(Línea de alimentación)
Cable de 2 hilos
(Línea de alimentación)
Cable de 2 hilos
(Línea de alimentación)
Cable de 2 hilos
(Línea de alimentación)
Cable de 2 hilos
(Línea de alimentación)
Cable de 2 hilos
(Línea de alimentación)
Cable de 2 hilos
(Línea de
Cable de 2 hilos
(Línea de
alimentación)
Cable de 2 hilos
(Línea de alimentación)
Cable de 2 hilos
(Línea de alimen
tación)
Cable de 2 hilos
(Línea de alimentación)
Cable de 2 hilos
(Línea de alimentación)
Cable de 2 hilos
(Línea de alimentación)
NOTAS
1
El cableado, los componentes y los materiales suministrados en la obra deberán cumplir con las normativas locales y nacionales aplicables
2
Utilice solamente conductores de cobre
3
Para detalles, consulte el diagrama de cableado
4
Instale el disyuntor de circuito para seguridad
5
Todo el cableado y los componentes necesarios en la obra debe suministrarlos un técnico electricista autorizado.
6
La unidad debe conectarse a tierra de acuerdo con lo especificado en las normativas locales y nacionales aplicables
7
Los diagramas de cableado son sólo directrices generales de puntos de conexión, y no están pensados para incluir todos los detalles de una instalación determinada.
8
No olvide instalar el interruptor y el fusible en la línea de alimentación de cada equipo.
9
Instale el interruptor principal para que éste pueda interrumpir todas las fuentes de alimentación eléctrica de manera integrada, ya que este sistema consta de un equipo que utiliza varias fuentes de alimentación.
10
Si existe la posibilidad de que se produzca una inversión de fase, una pérdida de fase, un corte temporal en el suministro eléctrico, o si la energía eléctrica va y viene mientras el sistema está funcionando, instale un circuito de protección
contra inversión de fase en la obra.
 Permitir que el producto funcione durante una inversión de fase puede provocar la avería del compresor y de otros componentes.
interruptor
principal
interruptor
interruptor
principal
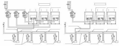
RWEYQ-P-[BOMBA DE CALOR]
3D048824D
NOTAS
1
El cableado, los componentes y los materiales suministrados en la obra deberán cumplir con las normativas locales y nacionales aplicables
2
Utilice solamente conductores de cobre
3
Para detalles, consulte el diagrama de cableado
4
Instale el disyuntor de circuito para seguridad
5
Todo el cableado y los componentes necesarios en la obra debe suministrarlos un técnico electricista autorizado.
6
La unidad debe conectarse a tierra de acuerdo con lo especificado en las normativas locales y nacionales aplicables
7
Los diagramas de cableado son sólo directrices generales de puntos de conexión, y no están pensados para incluir todos los detalles de una instalación determinada.
8
No olvide instalar el interruptor y el fusible en la línea de alimentación de cada equipo.
9
Instale el interruptor principal para que éste pueda interrumpir todas las fuentes de alimentación eléctrica de manera integrada, ya que este sistema consta de un equipo que utiliza varias fuentes de alimentación.
10
Si existe la posibilidad de que se produzca una inversión de fase, una pérdida de fase, un corte temporal en el suministro eléctrico, o si la energía eléctrica va y viene mientras el sistema está funcionando, instale un circuito de protección
contra inversión de fase en la obra. Permitir que el producto funcione durante una inversión de fase puede provocar la avería del compresor y de otros componentes.
Cuando la energía eléctrica llega a
cada unidad exterior por separado.
Cuando la fuente de alimentación está
conectada en serie entre las unidades
UNIDADES
EXTERIORES
UNIDADES
EXTERIORES
alimentación eléctrica
alimentación eléctrica
interruptor
principal
interruptor
fusible
interruptor
fusible
interruptor
fusible
interruptor
fusible
interruptor
fusible
interruptor
fusible
interruptor
fusible
interruptor
fusible
interruptor
fusible
interruptor
fusible
interruptor
fusible
Cable de 2 hilos
(Línea de transmisión)
Cable de 2 hilos
(Línea de transmisión)
UNIDAD 1
Cable de 2 hilos
(Línea de transmisión)
Cable de 2 hilos
(Línea de transmisión)
Cable de 2 hilos
(Línea de transmisión)
Cable de 2 hilos
(Línea de transmisión)
Cable de 2 hilos
(Línea de transmisión)
Cable de 2 hilos
(Línea de transmisión)
Cable de 2 hilos
(Línea de transmisión)
Cable de 2 hilos
(Línea de transmisión)
Cable de 2 hilos
(Línea de alimentación)
Cable de 2 hilos
(Línea de alimentación)
Cable de 2 hilos
(Línea de alimentación)
Cable de 2 hilos
(Línea de alimentación)
Cable de 2 hilos
(Línea de alimentación)
Cable de 2 hilos
(Línea de alimentación)
Cable de 2 hilos
(Línea de alimentación)
Cable de 2 hilos
(Línea de alimentación)
UNIDADES
INTERIORES
UNIDADES
INTERIORES
alimentación
eléctrica
alimentación eléctrica
interruptor
principal
UNIDAD 2
interruptor
fusible
UNIDAD 3
Cable de 2 hilos
(Línea de transmisión)
Cable de 2 hilos
(Línea de transmisión)
UNIDAD 1
UNIDAD 2
UNIDAD 3
interruptor
principal
interruptor
principal