1 .. 126 127 128 129 130 131 132 133 134 135 136 .. 220
Sistemas VRV
®
• Unidades exteriores
129
Unidades exteriores • Serie estándar • RWEYQ-PY1
9
Instalación
9 - 1
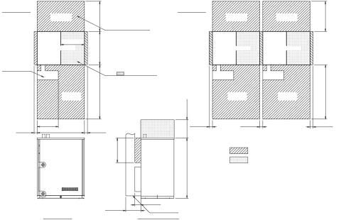
Espacio de servicio
3
9
RWEYQ8-10P
3D048341C
Para instalación de una
sola unidad
900 o
m
á
s
Disponga de 300mm o más para el espacio de mantenimiento
incluso si no se utiliza para extraer por detrás
Disponga de 300mm o más para el espacio de ventilación
por encima de
la parte marcada de la unidad exterior
Espacio para
mantenimiento (Trasero)
Unidad exterior
390 o más
550
5
00 o
más
Espacio para
mantenimiento
(Frontal)
Espacio para la
instalación de la
(Disponga de
espacio suficiente
para retirar la placa
delantera)
20 o más
(Espacio para
instalación en fila)
20 o más
(Espacio para
instalación en fila)
250 o más
100 o más
Espacio para la instalación de la
tubería de agua
Vista frontal
Vista lateral derecha
350 o
m
á
s
300
 o
más
1000
20 o más
: Espacio de mantenimiento necesario
Para instalación en fila
Espacio para
mantenimiento (Trasero)
Unidad exterior
Espacio para
mantenimiento
(Frontal)
Espacio para
mantenimiento (Trasero)
Unidad exterior
Espacio para
mantenimiento
(Fron
ta
l)
20 o más
(Espacio para
instalación en fila)
20 o más
(Espacio para
instalación en fila)
900 o
m
á
s
500 o
m
á
s
: Espacio para ventilación
350 o
780