1 .. 161 162 163 164 165 166 167 168 169 170 171 .. 220
Unidades exteriores • Serie geotérmica • RWEYQ-PY1R
Sistemas VRV
®
• Unidades exteriores
164
7
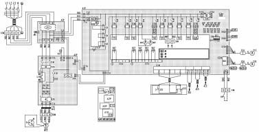
Diagrama de cableado
7 - 1
Diagrama de cableado
4
7
RWEYQ8-10PR
3D061377B
A1P
PLACA DE CIRCUITO IMPRESO (PRINCIPAL)
K5R
RELÉ MAGNÉTICO (Y3S)(A1P)
R2T
Termistor (succión)
X4M
Regleta de terminales (M1C)
A2P
PLACA DE CIRCUITOS IMPRESOS (INV)
K6R
Relé magnético (Y4S)(A1P)
R31T
TERMISTOR (M1C DESCARGA)
Y1E
Válvula de expansión electrónica (principal)
A3P
PLACA DE CIRCUITO IMPRESO
(FILTRO DE RUIDO)
K7R
Relé magnético (M1F,M2F)(A1P)
R4T
Termistor (tubo de gas del
intercambiador de calor)
Y3E
Válvula de expansión electrónica
(subrefrigeración)
BS1~5
CONMUTADOR PULSADOR
(MODO, AJUSTE, RETORNO, PRUEBA, REARME)
K8R
Relé magnético (Y6S)(A1P)
R5T
Termistor (intercambiador de calor de subrefrigeración)
Y1S
Válvula solenoide (para bypass de gas caliente)
K9R
RELÉ MAGNÉTICO (Y2S)(A1P)
R6T
Termistor (receptor de la tubería del líquido)
Y2S
Válvula solenoide (recuperación de aceite)
C63,C66
Condensador
K10R
Relé magnético
S1NPH
SENSOR DE PRESIÓN (ALTA)
Y3S
lvula de solenoide (presurización del receptor)
DS1
Conmutador DIP
K11R
Relé magnético (Y5S)(A1P)
S1NPL
SENSOR DE PRESIÓN (BAJA)
Y4S
Válvula solenoide (purga de gas del receptor)
E1HC
Calentador del cárter
K12R
Relé magnético (Y27S)(A1P)
S1PH
PRESOSTATO DE ALTA
Y5S
Válvula solenoide (válvula de 4 vías) (principal)
F1U
Fusible (250V, 5A, B)(A3P)
K13R
RELÉ MAGNÉTICO (E1HC)(A1P)
T1R
Transformador (220-240V/20V)
Y6S
Válvula solenoide (tubería del líquido)
F1U, F2U
Fusible (250V,10A, B)(A1P)
L1R
Reactor (A2P)
V1CP
Entrada para dispositivos de seguridad
Y7S
Válvula solenoide (válvula de 4 vías)
(intercambiador de calor)
H1P~8P
Luz piloto (Monitor de servicio: verde)
H2P]
preparado, probando parpadeando
detección de averíase enciende
M1C
Motor (compresor)
V1R
Puente de diodos (A2P)
Z1C
Filtro de ruido (núcleo de ferrita)
M1F,M2F
Motor (ventilador, refrigeración de inverter)
V2R
Módulo de alimentación eléctrica (A2P)
Z1F
Filtro de ruido (con absorbedor de ondas)
PS
Alimentación de conmutación
X1A,X2A
Conector (Y1E,Y3E)
HAP
Luz piloto (Monitor de servicio: verde) (A1P)
Q1RP
Circuito de detección de inversión de fases (A1P)
X1M
REGLETA DE TERMINALES (SUMINISTRO ELÉCTRICO)
K1M
Contactor magnético (M1C)(A2P)
R50,R59
Resistencia
X1M
Regleta de terminales (Control)(A1P)
SELECTOR FRÍO/CALOR
K1R
Relé magnético (A2P)
R95
Resistencia (limitadora de corriente)
X2M
Regleta de terminales (sa
lida de funcionamiento)
S1S
Conmutador selector (ventilador/frío - calor)
K3R
RELÉ MAGNÉTICO (Y1S)(A1P)
R1T
Termistor (Aleta)(A2P)
X3M
Regleta de terminales (interbloqueo)
S2S
Interruptor selector (frío/calor)
alimentación eléctrica
3N~380-415V  50Hz
Es el color del conector para la placa de circuitos impresos.
Es el color del conector para el componente
Es el color diferenciador para el
cable conductor del componente.
INTERIOR-
EXTERIOR
SELECTOR FRÍO/CALOR
exterior (Q1)(Q2)
exterior (F1)(F2)
Selector de frío/calor (accesorio opcional)
in
terior (F1)(F2)
frío
calor
frío
calor
ventilador
EXTERIOR-
EXTERIOR
EXTERIOR
-MÚLTIPLE
Interbloqueo
nota)6
CAJA
COMP.
EL
Detalle de M1C
nota)2
Colores
BLK
: Negro
RED
: Rojo
BLU
: Azul
WHT
: Blanco
PNK
: Rosa
GRY
: Gris
ORG
: Naranja
: Tendido de cables
: Conector
: Regleta de terminales
: Terminal
: Protección a tierra (tornillo)
NOTAS
1
E
s
t
e
d
iagrama de cableado se aplica sólo a la
unidad exterior
2
Si desea utilizar el adaptador opcional,
consulte el manual de instalación.
3
Consulte el manual de instalación para el
cableado de conexión hacia la transmisión
interior-exterior F1 - F2, la transmisión
exterior-exterior F1 - F2 y la transmisión
exterior-múltiple Q1 - Q2
4
Consulte la etiqueta “Precauciones de
servicio” (en la tapa del cuadro eléctrico) para
saber cómo utilizar los interruptores BS1~BS5
y DS1.
5
C
uando la unidad esté funcionando, no
provoque cortocircuitos para el dispositivo de
protección (S1PH).
6
A
s
egúrese de conectar un circuito de
interbloqueo entre l terminal (3)-(4) de la
regleta de terminales (X3M)
7
Instale un circuito de funcionamiento de
bomba de agua de fuente de calor entre el
terminal (1)-(2) de la regleta de terminales
(X2M), cuando interbloquee una bomba de
agua de fuente de calor y el funcionamiento
del sistema.
8
El selector de frío/calor no puede conectarse
cuando se opera el sistema de recuperación
de calor