1 .. 39 40 41 42 43 44 45 46 47 48 49 .. 220
Manual de diseño de refrigeración por agua
Sistemas VRV
®
Manual de diseño de refrigeración por agua
42
2
7
7
Sistemas de tuberías Refnet
BHFP26MA56
3D049206
N
OTAS
1
---- en la figura muestra la tubería de conexión (suministrada en la obra).
2
Consulte el “Manual de instalación” o los “Datos técnicos” para obtener detalles sobre la tubería de conexión necesaria.
3
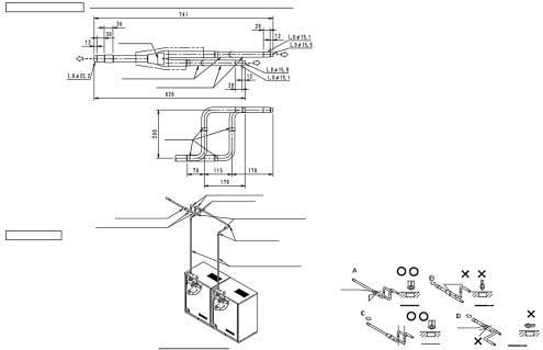
Observe la siguiente limitación cuando configure este kit.
I
n
s
tale la junta horizontalmente de forma que la etiqueta de precaución fijada a la junta esté en la parte superior.
No incline la junta más de ±15°.
 (Consulte la fig. 1).
Además, no instale la junta verticalmente.
 Consulte la fig. 2)
U
na instalación incorrecta puede provocar fallos de funcionamiento en la unidad exterior.
I
n
s
tale la pieza del codo L de la tubería de gas verticalmente y hacia arriba hasta que se desvíe. (Consulte la fig. 1,3)
Además, no instale tal como se muestra en la Fig. 4.
Junta del lado de gas de descarga
Piezas de los componentes
(BHFP26MA56)
Junta del lado de gas de succión: 1 unidad
Junta del lado de gas de descarga: 1 unidad
Junta del lado de líquido: 1 unidad
Tubería del lado de gas de succión (accesorio): 2 unidades
Tubería del lado de gas de descarga (accesorio): 2 unidades
Reductor del lado de gas de succión: 2 unidades
Reductor del lado de gas de descarga: 2 unidades
Reductor del lado de líquido: 1 unidad
Aislamiento térmico: 2 unidades
Tubo de aislamiento para tubería de gas: 4 unidades
Tubo de aislamiento para tubería de líquido: 1 unidad
Manual de instalación
Ejemplo de instalación
A la unidad interior
Junta del lado de gas de descarga
Tubería del lado de gas de descarga (accesorio
Reductor del lado de gas de descarga
Conexión
de tubería
en la obra
Exterior
Unidad A
Exterior
Unidad B
A la unidad exterior B
A la unidad exterior A
Etiqueta de precaución
Máx.
±15°
L
ín
e
a
ho
r
iz
o
n
ta
l
Línea vertical
Vista D
Fig. 1
Fig.
2
Fig.
 5
Fig. 4
Etiqueta de precaución
Etiqueta de precaución
Tie
rra
Tie
rra
Tierra
Tierra
Vista C
Vista A
Vista B
Codo (suministrado en la obra)
Codo (suministrado en la obra)
Tubo de gas de descarga (suministrado en la obra)
Tubo de gas de descarga (suministrado en la obra)
Junta del lado de gas de descarga + Reductor del lado de gas de descarga + Tubería del lado de gas de descarga (accesorio)
Etiqueta de
precaución
Tubería del lado de gas de descarga (accesorio
Reductor del lado de gas de descarga