1 .. 41 42 43 44 45 46 47 48 49 50 51 .. 220
Manual de diseño de refrigeración por agua
Sistemas VRV
®
Manual de diseño de refrigeración por agua
44
2
7
7
Sistemas de tuberías Refnet
BHFP22MA84
3D049156
N
OTAS
1
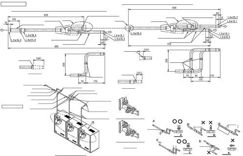
---- en la figura muestra la tubería de conexión (suministrada en la obra).
2
Consulte el “Manual de instalación” o los “Datos técnicos” para obtener detalles sobre la tubería de conexión necesaria.
3
Observe la siguiente limitación cuando configure este kit.
I
n
s
tale la junta horizontalmente de forma que la etiqueta de precaución fijada a la junta esté en la parte superior.
No incline la junta más de ±15°.
 (Consulte la fig. 1).
Además, no instale la junta verticalmente.
 Consulte la fig. 2)
Asegúrese de que la tubería hasta la junta es recta durante más de 500 mm.
No doble la tubería en la obra dentro de este rango.
Si se conecta una tubería en la obra de más de 120 mm, se pueden garantizar más de 500 mm de sección recta. (Consulte la fig. 3)
U
na instalación incorrecta puede provocar fallos de funcionamiento en la unidad exterior.
I
n
s
tale la pieza del codo L de la tubería de gas verticalmente y hacia arriba hasta que se desvíe. (Consulte la fig. 1,4)
Además, no instale tal como se muestra en la Fig. 5.
Junta del lado de gas
P
iezas de los componentes
(BHFP22MA84*)
Junta del lado de gas: 2 unidades
Junta del lado de líquido (1): 1 unidad
Junta del lado de líquido (2): 1 unidad
Tubería del lado de gas (accesorio: 3 unidades
Reductor del lado de gas (1): 3 unidades
Reductor del lado de gas (2): 1 unidad
Reductor del lado de líquido: 2 un
idades
Aislamiento térmico: 4 unidades
Tubo de aislamiento para tubería de gas: 3
unidades
Tubo de aislamiento para tubería de líquido: 2
unidades
Manual de instalación
* Consulte el diagrama exterior de las piezas de
componentes en el caso de BHFP26MA84.
Sistema de bomba de calor
Junta del lado de gas + Reductor del lado de gas (1) +Tubería del lado de gas (accesorio)
Corte la tubería
Junta del lado de gas
Tubería del lado de gas (accesorio)
Tubo de gas (suministrado en la obra)
Conexión de
tubería en la
obra
Etiqueta de precaución
Corte la tubería
Sistema de recuperación de calor
DETALLE G
Posición de corte de tubería en la junta del lado de gas
Reductor del lado de gas (2)
Codo (suministrado en la obra)
Codo (suministrado en la obra)
Tubo de gas (suministrado
en la obra)
Exterior
Unidad A
Exterior
Unidad B
DETALLE H
DETALLE F
Posición de corte de tubería en la junta
del lado de gas
PIEZA F
Tubería del lado de gas (accesorio)
Reductor del lado de gas (2)
Reductor del lado de gas
Tubería del lado de gas (accesorio)
Conecte, después de cortar la
tubería
A la unidad exterior B
Et
iqueta de precaución
Máx.
±15°
L
ín
e
a
h
o
r
iz
on
ta
l
Línea vertical
Vista
Vista
Vista
Vista
Fig.
 1
Fig
.
2
Fig.
 3
Fig.
 5
Fig.
 4
Etiqueta de precaución
Etiqueta de precaución
Tubería en la obra
Tierra
s
de5
00
0m
m
de
lo
ng
itu
d
Tierra
Tierra
Tierra
Más de 120 mm de
longitud
DETALLE E
Posición de corte de tubería en la
junta del lado de gas
A la unidad
exterior C
PIEZA E
A la unidad exterior A
Reductor del lado de gas (1)
Tubería del lado de
gas (accesorio)
Junta del lado de gas
Reductor del lado de gas (1)
Exterior
Unidad C
Codo (suministrado en la obra)
Tubo de gas (suministrado en la obra)
Conexión de
tubería en la
obra
Junta del lado de gas + Reductor del lado de gas +Tubería del lado de gas (accesorio) + Reductor del lado del gas (2)
Reductor del lado de gas (1)
Conecte, después de cortar la tubería
PIEZA G
Etiqueta de precaución
Ejemplo de instalación
A la unidad
interior